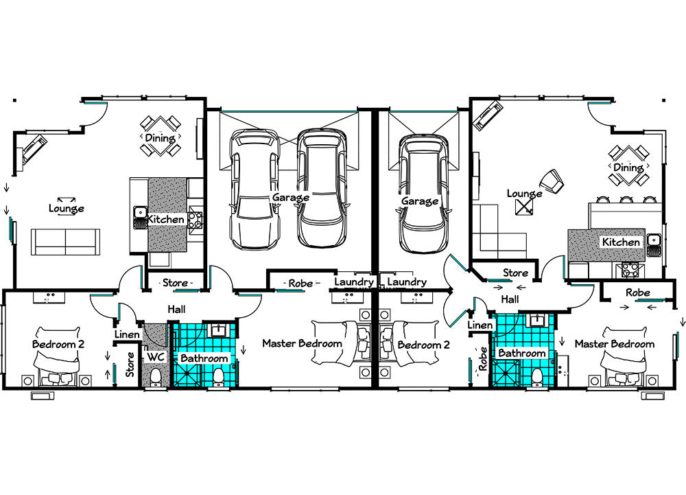
Blue Lifestyle Villa - Plans

Blue Villa
102.02m2 Single garage
125.9m2 Double garage
Automatic garage door with two remotes
Bathroom extractor fan
Bathroom heater
Carpet and vinyl
Clothesline
Dishdrawer single
Door bell
Emergency alarm remote
Front door side glass for security viewing
Heatpump
Heated towel rail
Landscaping and planted roadside gardens
Laundry supertub
LED lighting
Linen and store wire shelving system
Mirror cabinet
Phone connection in bedroom and kitchen
Rangehood
Shower slide and mixer grab rail
Smoke alarms
Solar panels
Storage unit & carpet in garage
Wall oven & electric ceramic cooktop